Klenot ze dřeva

Moderní dřevostavba v energeticky pasivním standardu pro pohodlné bydlení manželského páru v seniorském věku.

Pasivní standard pro aktivní seniory

Na místě původní chaty vyrostla elegantní dřevostavba pro aktivní seniorský pár. Dům s tmavou opalovanou fasádou chytře využívá svažitý pozemek a nabízí dílnu, terasu s úchvatným výhledem na Ještěd i podkroví s dostatkem prostoru pro návštěvy. Elegantní detaily, terasa s pergolou, zahrada a okolní krajina dotváří velmi příjemnou atmosféru.
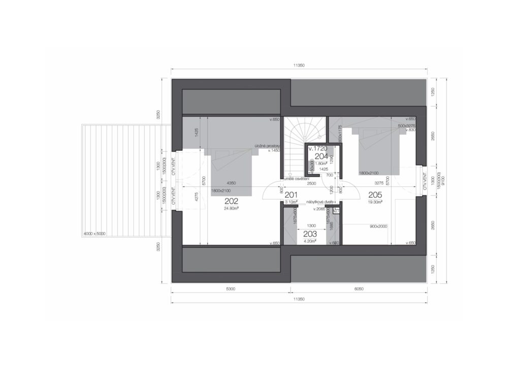
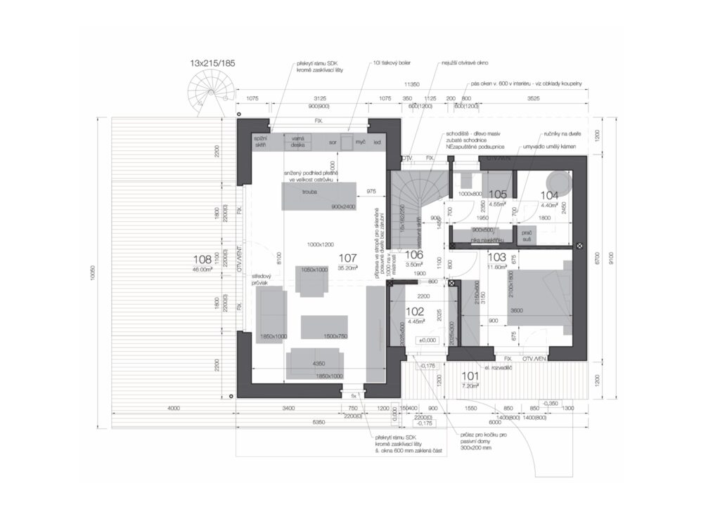
Užitná plocha
117 m2
Dispozice
4kk
Energetická třída
A
Architekt
Ing. arch. Jana Jasinek

Zajímavá řešení

Efektivní využití malého svažitého pozemku
Dřevěná fasáda z opalovaných prken
Rozvody pro využití "šedé" odpadní vody
Větrání s rekuperací
Tepelné čerpadlo

Naše domy

Další projekty

Na vlně
Útočiště v ráji
Statek na Výšině